【專家談水環境】上海新建馬橋鎮16A-02/04地塊商業辦公項目幾種水環境的系統設計(一)
發表時間:2021-11-20 00:00:00|閱讀量:1037
主題:上海新建馬橋鎮16A-02/04地塊商業辦公項目幾種水環境的系統設計(一)
專家:劉春生

摘要:很多高檔商業辦公項目的水環境系統設計,要求的各專業深度高、跨專業的廣度大。上海新建馬橋鎮16A-02/04地塊商業辦公項目的幾種水環境的系統設計就是其中一例。該項目包括了室內游泳池系統、兒童池系統、室內游泳除濕系統、蒸汽房系統、桑拿房系統、雨水回收系統、室外生態水景池系統、古建門前水景池系統、水族維生系統等不同的水環境設計,本文重點介紹室內游泳池系統、室內游泳池除濕系統和雨水回收系統的設計。
關鍵詞:游泳池水處理;室內游泳池除濕系統;游泳池消毒系統;雨水回收系統
1.概述
上海古胤置業有限公司(中英合資)新建的馬橋鎮16A-02/04地塊商業辦公項目是養云安縵項目的續集,整體項目位于閔行區馬橋鎮,用地面積 43000 m2。酒店北側的元江路為城市主干道,南面為規劃建設中的森林公園。酒店分新建與傳統民宅移建兩大部分,由新加坡 KHA 設計事務所、華建集團華東總院、華建集團上海院、上海漢思建筑設計事務所等共同完成。根據前期的規劃,項目分為 A、B 兩區,包含酒店公共部分、基本客房區和幾十個院落式客房組群。其中,B 區內一部分庭院是對江西傳統民宅的移建保護,其周邊為新建客房及輔助功能房間等。這些民宅有些被改為高端度假酒店使用,有些則作為高端企業家會所式辦公場所,部分民宅內增設了地下室,作為設備機房、展廳、健身房等。這是個具有特色的高檔項目,獲得了多個獎項。
“水環境領航者”——聯盛水環境工程有限公司承接了對新建馬橋鎮16A-02/04地塊商業辦公項目的室內游泳池系統、室內兒童池系統、游泳池恒溫恒濕系統、蒸汽房系統、桑拿房系統、雨水回收系統、室外生態水景池系統、古建門前水景池系統、水族維生系統的專業設計。

表1 新建馬橋鎮商業辦公項目幾種水環境系統設計參數
2.項目的主要水環境設計
2.1 泳池系統設計
室內游泳池、兒童池水處理循環系統、恒溫除濕系統、水下照明系統、電氣控制系統方案及施工圖深度的圖紙設計(包含泳池配套的干濕蒸房、強制淋浴、浸腳池等的設計);室外按摩池水處理循環系統、水下照明系統、電氣控制系統方案及施工圖深度的圖紙設計。

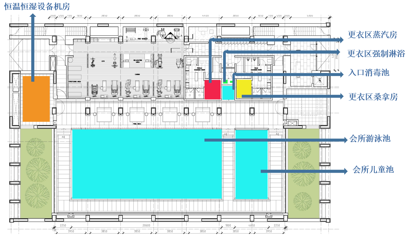
圖2 新建馬橋鎮商業辦公項目的室內水環境設計圖
室外游泳池水處理循環系統、水下照明系統、電氣控制系統方案及施工圖深度的圖紙設計;泳池水處理循環系統包括給排水系統、補水系統、水處理系統、恒溫加熱系統、恒溫除濕系統、消毒系統、水質監測系統等,另有幾個院落室外泳池及按摩池。
2.2 水景設計
室外水景及景觀水處理系統、水下照明系統、電氣控制系統方案及施工圖深度的圖紙設計;水景及景觀水處理系統包括跌水系統、疊水系統、涌泉系統、給排水系統、補水系統、水處理系統、消毒系統等(生態水池需考慮生態處理系統)。
2.3 雨水回收系統設計
雨水回收系統方案及施工圖深度的圖紙設計;雨水回收系統包括雨水收集、處理、儲存與回用所有工藝設計及設備選型計算,并滿足規范、設計要求及當地政府審批要求。同時雨水回用系統設計需考慮兼顧抽取河道水處理用于景觀灌溉及水景補水。
3. 室內游泳池設計
3.1 室內游泳池參數

表2 室內游泳池兒童淺水池參數表
3.2 泳池動力系統
系統循環泵采用3用1備,材質要求:小于等于3HP的過濾泵采用泳池專用泵,自帶毛發收集器;大于3HP的過濾泵鑄鐵外殼,不銹鋼葉輪,不銹鋼泵軸,機械密封,配隔振裝置,采用先進的電控技術,具有過載自動保護功能。
3.3 過濾系統
過濾方式各個系統均采用“石英砂過濾器”的過濾方式,濾速采用15~25m/h,石英砂過濾器罐體材質為玻璃鋼(FRP)。濾料層厚度>700mm,配置進出水管,檢修孔,差壓管等附件,具有手動反沖洗功能;濾速<25m /h,反沖洗強度為12-15L/s.m,反沖洗時間: 8~10分鐘。
3.4 消毒和pH調整劑系統
消毒方式:各個系統均采用“長效氯+高效臭氧"消毒方式。
3.4.1 長效氯消毒系統
采用次氯酸鈉溶液,設計投加量(有效氨濃度) 1~3mg/L,藥劑配置濃度為5%~10% ;利用水質監控儀控制投加方式,加藥泵均與循環水泵聯動,藥劑采用濕式壓力投加方式。
3.4.2 高效臭氧消毒系統
分流量全程式臭氧消毒,臭氧投加量采用0.51mg/L。臭氧發生器與循環水泵連鎖控制,只有任何一臺或兩臺循環泵在運行時,臭氧濃度超標時會自動停止臭氧發生器。同時臭氧發生器還受臭氧濃度監測儀表的控制,當監測臭氧濃度超標時會自動停止臭氧發生器。射流增壓泵及空氣壓縮機與臭氧發生器配套。臭氧發生器配有運行或停止指示燈。臭氧設備間內應設有臭氧泄漏監測器及報警裝置。
3.4.3 pH調整劑
pH調整劑采用碳酸氫鈉,在濾后濕式投加。設計投加量為1~5mg/L,藥劑配置濃度為5%~10% (借助水質監控儀控制投加方式)。

圖3 室內游泳池水處理示意圖
4 室內游泳池的除濕系統
4.1 除濕系統配置的必要性
(1)根據《游泳池給水排水工程技術規程》CJJ 122-2017中9.5.1規定,室內空間相對濕度宜控制在55%~65%之間;根據《體育建筑設計規范》JGJ 31-2003中10.2.3規定,池區相對濕度宜在60%~70%之間;根據新國標《公共場所衛生指標限值要求 GB37488-2019》要求游泳館內相對濕度不大于80%。本項目的要求:室內游泳池水溫28℃,室內空氣溫度28℃, 室內相對濕度60%。
(2)如不進行濕度控制,室內的建筑裝修材料容易受到濕氣入侵而受潮。如果裝修材料本身的溫度過低時,濕氣會在裝修材料甚至結構體內部凝結成水滴停留在建材內部,而加速了建材與結構的腐蝕;
(3)池區的高濕度環境容易造成玻璃、墻面、頂棚的結霧滴水現象;
(4)水中的自由氯經過消毒后產生帶有刺激氣味的氯胺,氯胺極易蒸發到空氣中,使空氣的質量惡化,而蒸發的氯胺再與裝修材料上凝結的水滴結合成帶有腐蝕性的氯化物溶液附著于建材表面,使建材腐蝕;
(5)恒溫游泳池所需的池水加熱及空間內的空調送風等都需要消耗很大的能量,如果在能源系統上沒有考慮熱回收的節能設計,將會使許多可回收利用的能量白白浪費掉,無形中使泳池的營運成本增加;
(6)室內環境空氣的相對濕度如果太高,人體感到不適,相對濕度太低時,會加速人體表面的蒸發,而容易產生寒冷感;又會造成池水蒸發速度加快而增加耗能。
4.2 濕負荷計算
以往,對室內除濕量的計算有很多不同的理念和計算方法,分散在不同的設計技術手冊和標準規范里,而新修訂的《游泳池給水排水工程技術規程CJJ122-2017》和《游泳及游樂休閑設施水環境技術手冊》對室內游泳池、游樂場、公共水療按摩池和溫泉等進行了系統的、科學的規范,室內游泳等場所的除濕量,應由室內人體散濕量W1、池邊散濕量W2、敞開水面的散濕量W3和新風除濕量W4構成。
4.3 室內空氣處理系統

表3 多功能除濕熱泵參數表
4.4 除濕機組的特點:
(1)集除濕、空氣調節、熱回收、池水加熱、新風處理多項功能于一體;
(2)具有多種工作模式,A、除濕+空氣再熱,B、除濕+空氣降溫+泳池恒溫,C、除濕+空氣制冷,D、全新風節能模式,F、輔助加熱分級配置模式;
(3)國際知名品牌渦旋式壓縮機,高效、靜音、使用壽命長;
(4)PVC+鈦質無縫管換熱器,具有超強的耐腐蝕性;
(5)觸屏真彩顯示,可配備RS485通訊協議,可接入互聯網,可實現遠程控制;
(6)采用環保冷媒(如R-407C、R410A等)。
4.5 合理的氣流組織:
(1)根據本項目特點,結合建筑結構的實際情況,采用上送風上回風的氣流組織方式;
(2)送風口均勻分布在游泳池四周,保證干區部分的送風溫度、濕度適宜,以達到最大的舒適性,防止周邊玻璃結霧、結露;
(3)回風位于泳池上方,第一時間將濕熱空氣引入除濕機組進行除濕處理,避免泳池頂部裝飾結露滴水,防止裝飾材料被含氯的水蒸氣腐蝕;
(4)泳池空間呈微負壓狀態,防止泳池空間內含氯水蒸氣擴散到附近其它房間;
(5)在春秋季室外溫度、濕度適宜的情況下,運行新風除濕模式,開啟全新風,既可以保證泳池空間適宜的溫度、濕度,也可減少除濕機組壓縮機運行能耗,節約運行費用。

